One_House_Per_Day No. 553
With Felipe Correa
Location: Generic Desert
Type: Desert Courtyard (subtractive)
Term: Summer 2021
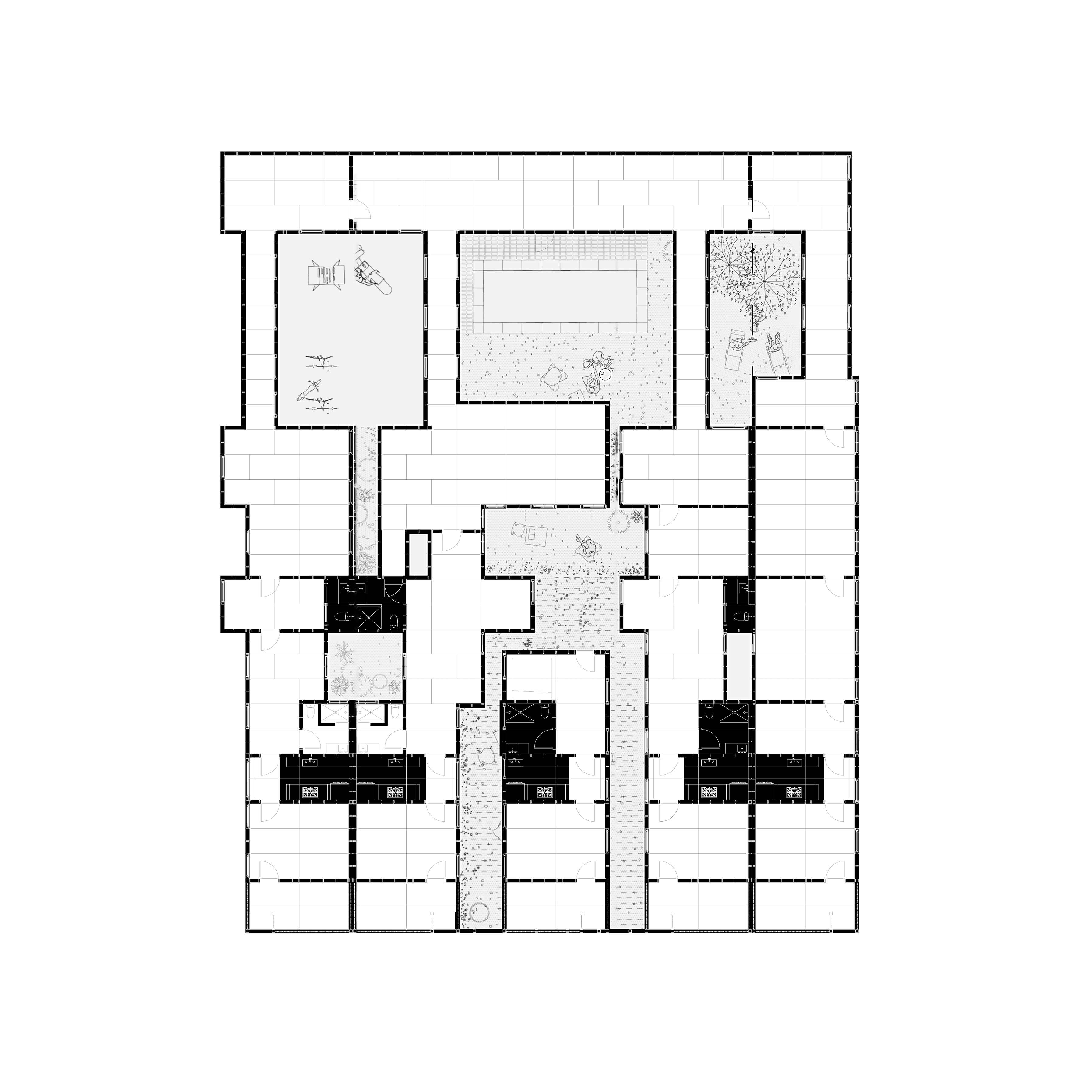
For One House per Day no.553 Dylan Gibbs @archgibbs proposes an alternative for desert living. The desert courtyard house reexamines the historic use of a courtyard by translating it into an implied space, creating a tranquil place that offers air, light, privacy, security, and tranquility within a series of thick walls. Based on tradition forms native to the desert, the model allows private and semi-private courtyards and walkways to emerge from the scenery while also allowing easy glimpses — through and around rooms — into the landscape beyond.
#onehouseperday #onedrawingperday#onethingperday #weirdhouses#architecturaldrawing #oblique #plan#section #architecture#paperarchitecture #drawing#housedrawing #housesofinstagram#fakehousesofinstagram



One_House_Per_Day No. 554
With Felipe Correa
Location: New Orleans
Type: Shotgun House
Term: Summer 2021
For One House per Day no.553 Dylan Gibbs @archgibbs proposes an alternative for desert living. The desert courtyard house reexamines the historic use of a courtyard by translating it into an implied space, creating a tranquil place that offers air, light, privacy, security, and tranquility within a series of thick walls. Based on tradition forms native to the desert, the model allows private and semi-private courtyards and walkways to emerge from the scenery while also allowing easy glimpses — through and around rooms — into the landscape beyond.
#onehouseperday #onedrawingperday#onethingperday #weirdhouses#architecturaldrawing #oblique #plan#section #architecture#paperarchitecture #drawing#housedrawing #housesofinstagram#fakehousesofinstagram


