In Situ
Instructor: Devin Dobrowolski
Location: Charlottesville, Virginia
Term: Spring 2020
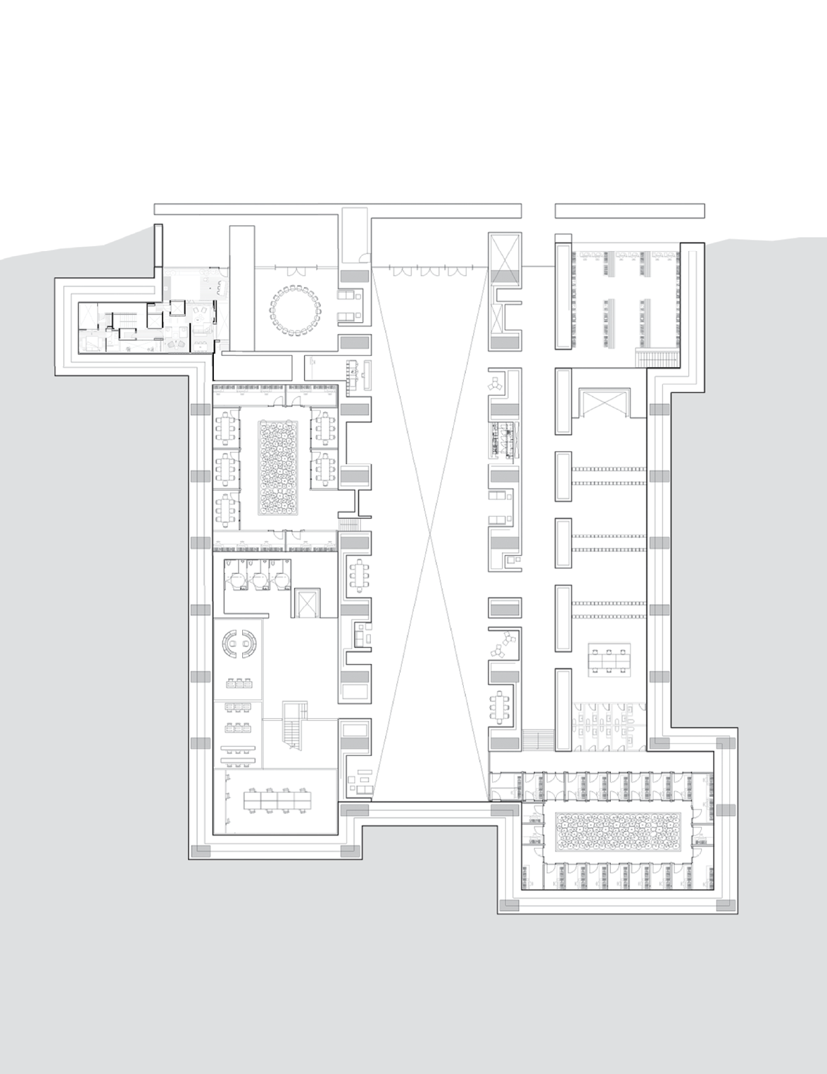
Carefully carved into the topography of the campus, In Situ is conceived as a series of nested spaces that are qualified through light coming in from its roof garden. Never perceived as an object, the project argues for deep and transparent spaces where the individual and the collective coexist. Sunken into the rise of a new landscape, a series of hidden, discrete rooms grounded in the earth create an array of contemplative spaces ranging in morphable programmatic determination. Built like a little town, the arrangement of different types of rooms, described by their variations of light, access, proportion, and scale form an equal and opposite experience to the typical university building.













