Housing
Instructor: Ajay Manthripragada
with Ava Violich Kennedy
Location: Boston, Massachusetts
Term: Spring 2022
Buildings age, ways of living shift, climates change. Rejecting an architecture of replacement, this proposal posits a new way forward – the design of a system that, through minimal intervention of light, affordable construction, can give rise to new organizations, social relationships, and standards of environmental performance to a bracketed set of typologically similar buildings.
This intervention at Parkside Place is a site specific instantiation of an architectural system that reintroduces environmental, economic, and social resilience to an aging building stock.
This system follows five new points:
1. Maintain as much of the existing building as possible
2. Subtract only to add density or respond to large scale reorganization
3. Add the minimal depth to create an updated spatial organization
4. Remain structurally independent from the existing building
5. Engage the social resources of adjacent public buildings
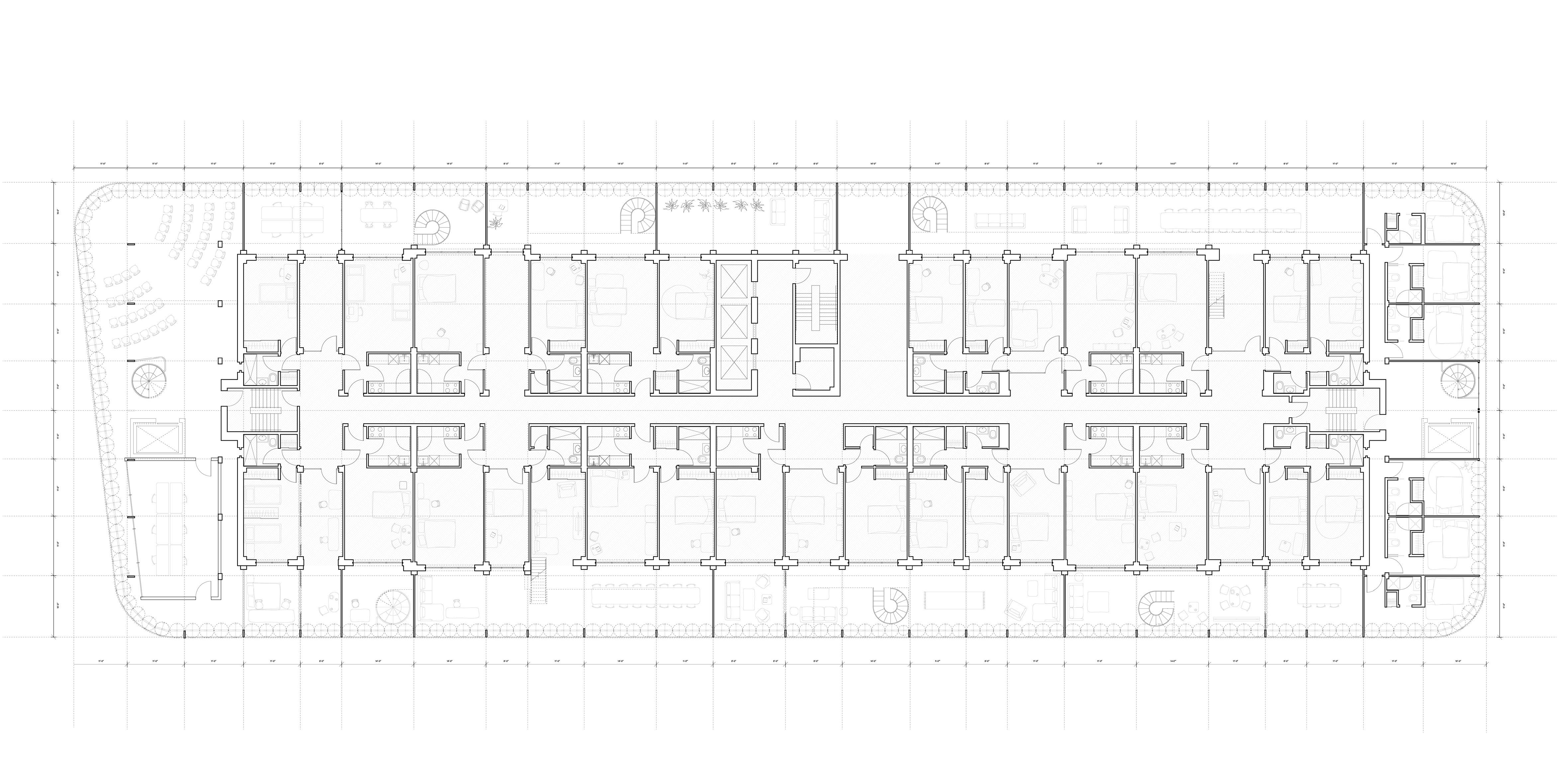
This intervention recognizes the existing building as base infrastructure for housing: bedrooms, bathrooms, kitchens, and storage. Free from these absolutely required domestic programs, the intervention, a twelve-foot wrapper, connects, combines, redistributes, isolates, and reinterprets the existing, blurring the base building into something surprising yet familiar. Responding to the existing structural grid of the building but not extending it directly, the wrapper creates a new matrix of unit arrangements that, through juxtaposition, imposes differentiation on the generic organization of units in the existing high-rise.
More than a renovation, the aims and objectives of the intervention transform the organization, function, and environmental performance of an existing housing type, creating an architecture of site-specific resiliency. This approach models a path forward for the adaptive reuse and manipulation of specific housing-type based on principles that remedy the urgent social, cultural, and environmental needs of a contemporary housing condition.










